210.000€
Partilhar
Referência
VEN-4182
Natureza
Venda
Tipo de Imóvel
Moradia
Subtipo de Imóvel
Moradia Geminada
Tipologia
T2
Estado
Remodelado
Certificado energético
B-
Ano
1980
Distrito
Aveiro
Concelho
Águeda
Freguesia
Águeda e Borralha
Código Postal
3750
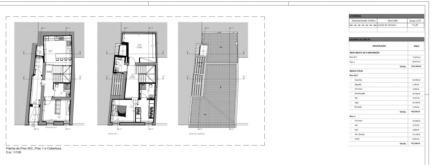
Área Útil
96.3 m2
Área Bruta
137.44 m2
Área de Terreno
71.87 m2
Moradia T2 no Sardão de dois pisos. No piso térreo, a casa é constituída por uma zona social, onde se encontra um hall de entrada e corredor de distribuição que dá acesso à cozinha que fica totalmente equipada e que tem um saguão para mais entrada de luz natural. Neste piso encontra-se ainda a sala de estar/jantar, uma casa de banho de serviço e uma zona de lavandaria. No piso superior, encontramos a zona privativa que é composta por uma casa de banho completa, dois quartos com roupeiros embutidos, sendo um deles suíte com closet e casa de banho privativa. Esta moradia possuí ainda ventilação mecânica controlada, ar condicionado completo no piso térreo e bomba de calor. Localizada a poucos minutos de Águeda. Marque a sua visita e venha conhecer esta bela moradia… Sobre nós: A equipa da LITORALCASA inicia todos os dias de trabalho com o objetivo de encontrar a compatibilidade perfeita entre quem vende e quem pretende comprar. O nosso foco centra-se na mediação imobiliária; por isso todos os dias fazemos o cruzamento entre os imóveis em carteira que nos são confiados e quem os procura. Isto aplica-se à compra, venda, permuta, trespasse, cedências de posição e arrendamento. Encaramos esta missão de uma forma muito dedicada e temos como principal objetivo auxiliar a concretizar as aspirações de investimento imobiliário dos nossos clientes. O que nos motiva e diferencia é a proximidade com que nos relacionamos com o mercado e as pessoas que o compõem. Temos um conhecimento muito próximo da dinâmica da oferta e procura, porque estamos em constante contacto com esta componente social e humana. Estes aspetos dão-nos todo o conhecimento necessário para fazer um acompanhamento de proximidade em todas as fases do seu processo de aquisição imobiliária. Missão: A nossa missão consiste em realizar o sonho imobiliário dos nossos clientes, garantindo para isso um serviço exclusivo, transparente, próximo e completo de modo a abranger todas as etapas necessárias desde a compra até à venda ou arrendamento dos imóveis. O nosso propósito é encontrar a melhor solução para o seu lar ou para o seu investimento. Visão: Fomentar o desenvolvimento de uma rede virtuosa de compra, venda e arrendamento no setor imobiliário capaz de atrair e fidelizar clientes, bem como de satisfazer as mais diversas necessidades imobiliárias dos nossos clientes. Valores · Ética · Rigor · Respeito · Lealdade · Conhecimento · Proximidade · Transparência
| Climatização | Ar condicionado: | Sim |
|---|---|---|
| Climatização | Bomba de calor: | Sim |
| Caixilharia | PVC: | Sim |
| Caixilharia | Termolacada: | Sim |
| Caixilharia | Vidro Duplo: | Sim |
| Caixilharia | Estores: | Sim |
| Vistas | Cidade: | Sim |
| Exposição Solar | Nascente: | Sim |
| Exposição Solar | Poente: | Sim |
| Gerais | Nº de Divisões : | 2 |
| Gerais | Nº de Casas de Banho: | 3 |
| Gerais | Nº de Arrecadações: | 1 |
| Gerais | Lavandaria: | Sim |
| Gerais | Despensa: | Sim |
| Gerais | Armário de roupa / closet: | Sim |
| Gerais | Suite: | Sim |
| Gerais | Recomendado para crianças: | Sim |
| Quarto de Banho | Comum: | Sim |
| Luz Natural | Muito Iluminado: | Sim |
| Ar Condicionado | Completo: | Sim |
| Infraestruturas | Esgotos: | Sim |
| Cozinha | Móveis lacado: | Sim |
| Cozinha | Cerâmica: | Sim |
| Cozinha | Placa: | Sim |
| Cozinha | Forno: | Sim |
| Cozinha | Exaustor: | Sim |
| Cozinha | Micro-ondas: | Sim |
| Cozinha | Frigorífico: | Sim |
| Cozinha | Máquina de lavar loiça: | Sim |
| Pavimento | Piso vinílico: | Sim |
| Pavimento | Cerâmica: | Sim |
| Gerais | Nº de Frentes : | 1 |
|---|---|---|
| Gerais | Nº de Pisos: | 2 |
| Gerais | Permite animais: | Sim |
| Tipo de Empreendimento | Habitação: | Sim |
| Isolamento | Acústico: | Sim |
| Isolamento | Térmico: | Sim |
| Revestimento Exterior | Pintado: | Sim |
| Revestimento Exterior | Capoto: | Sim |
| Pavimento Hall de Entrada | Tijoleira: | Sim |
| Paredes Hall de Entrada | Pintadas: | Sim |
| Tecto Hall de Entrada | Falso pladur: | Sim |
| Tecto Hall de Entrada | Focos: | Sim |
| Tecto Hall de Entrada | Ponto de luz: | Sim |
| Equipamento | TV Cabo: | Sim |
| Equipamento | Ventilação mecânica: | Sim |
| Água | Companhia: | Sim |
| Gerais | Estores elétricos: | Sim |
|---|---|---|
| Aquecimento Central | Completo: | Sim |
| Gerais | Auto-Estrada: | Sim |
|---|---|---|
| Gerais | Comboio: | Sim |
| Gerais | Perto de rio: | Sim |
| Gerais | Transportes públicos: | Sim |
| Proximidade | Bancos: | Sim |
| Proximidade | Bombeiros: | Sim |
| Proximidade | Centros comerciais: | Sim |
| Proximidade | Clínicas: | Sim |
| Proximidade | Escolas: | Sim |
| Proximidade | Farmácias: | Sim |
| Proximidade | Ginásios: | Sim |
| Proximidade | Hospitais: | Sim |
| Proximidade | Jardins: | Sim |
| Proximidade | Jardins de infância: | Sim |
| Proximidade | Padarias: | Sim |
| Proximidade | Polícia: | Sim |
| Proximidade | Serviços públicos: | Sim |
| Proximidade | Supermercados: | Sim |
| Proximidade | Universidade: | Sim |
| Acessos | Calçada: | Sim |
| Centralidade | Junto à cidade: | Sim |
Este imóvel não tem áreas definidas.
LITORALcasa Vera Cruz
Rua Prior Manuel António Fernandes 18 , 3800-816, Aveiro 234191000
(Chamada para a rede fixa nacional)
914670000 (Chamada para a rede fixa nacional)
Sandra Alves
Consultor
917624112
(Chamada para a rede móvel nacional)
Aveiro, Águeda, Águeda e Borralha
195.000€
Ref: VEN- 4134
Ref: VEN- 4134
Aveiro, Águeda, Macinhata do Vouga
305.000€
Ref: VEN-4206
Ref: VEN-4206