385.000€
Partilhar
Referência
VEN-4114 F
Natureza
Venda
Tipo de Imóvel
Apartamento
Tipologia
T2
Estado
Novo
Certificado energético
A
Ano
2025
Distrito
Aveiro
Concelho
Aveiro
Freguesia
Esgueira
Código Postal
3800
Área Útil
65.55 m2
Área Bruta
93.26 m2
Área de Terreno
0 m2
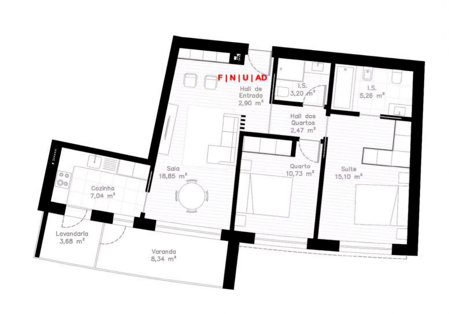
Pronto a habitar! Este apartamento, de tipologia T2, encontra-se no Empreendimento Novus Plaza, um edifício moderno e sofisticado, com acabamentos modernos e de alta qualidade. Aqui tudo foi pensado ao pormenor para tornar cada apartamento um lugar onde se quer viver e principalmente onde se gosta de estar. As suas janelas amplas aproveitam toda a luminosidade e a varanda prolonga o espaço e convida ao lazer. O apartamento é composto por hall de entrada, sala em open space com a cozinha. Esta é equipada com placa de indução, forno, micro-ondas, exaustor, combinado e máquina de lavar louça. A sala tem acesso a uma agradável varanda. Os dois quartos têm roupeiros embutidos lacados a branco, sendo um deles uma bela suite. Na entrada para os quartos, encontramos uma casa de banho completa. Na cave, dispõe de um lugar de estacionamento e um arrumo fechado. Outras características: - Lavandaria - Ar condicionado, - Bomba de calor para águas sanitárias, - Vídeo porteiro, - Portas blindadas com fechaduras de alta segurança, - Portas interiores e roupeiros lacados a branco, - Pavimento vinílico à cor nogueira, - Torneiras Grohe. Construção e acabamentos de excelência. Perto das escolas, dos transportes públicos, do comércio, da estação de comboios, do centro da cidade e de todos os acessos rodoviários... a sua localização é ideal para todos os estilos de vida. Não perca esta oportunidade! Venha falar connosco! Sobre nós: A equipa da LITORALCASA inicia todos os dias de trabalho com o objetivo de encontrar a compatibilidade perfeita entre quem vende e quem pretende comprar. O nosso foco centra-se na mediação imobiliária; por isso todos os dias fazemos o cruzamento entre os imóveis em carteira que nos são confiados e quem os procura. Isto aplica-se à compra, venda, permuta, trespasse, cedências de posição e arrendamento. Encaramos esta missão de uma forma muito dedicada e temos como principal objetivo auxiliar a concretizar as aspirações de investimento imobiliário dos nossos clientes. O que nos motiva e diferencia é a proximidade com que nos relacionamos com o mercado e as pessoas que o compõem. Temos um conhecimento muito próximo da dinâmica da oferta e procura, porque estamos em constante contacto com esta componente social e humana. Estes aspetos dão-nos todo o conhecimento necessário para fazer um acompanhamento de proximidade em todas as fases do seu processo de aquisição imobiliária. Missão: A nossa missão consiste em realizar o sonho imobiliário dos nossos clientes, garantindo para isso um serviço exclusivo, transparente, próximo e completo de modo a abranger todas as etapas necessárias desde a compra até à venda ou arrendamento dos imóveis. O nosso propósito é encontrar a melhor solução para o seu lar ou para o seu investimento. Visão: Fomentar o desenvolvimento de uma rede virtuosa de compra, venda e arrendamento no setor imobiliário capaz de atrair e fidelizar clientes, bem como de satisfazer as mais diversas necessidades imobiliárias dos nossos clientes. Valores: • Ética • Rigor • Respeito • Lealdade • Conhecimento • Proximidade • Transparência
| Gerais | Pisos: | 1 |
|---|---|---|
| Gerais | Nº de Divisões : | 2 |
| Gerais | Nº de Casas de Banho: | 2 |
| Gerais | Lavandaria: | Sim |
| Gerais | Armário de roupa / closet: | Sim |
| Gerais | Suite: | Sim |
| Gerais | Adaptado a mobilidade reduzida: | Sim |
| Gerais | Recomendado para crianças: | Sim |
| Climatização | Ar condicionado: | Sim |
| Climatização | Bomba de calor: | Sim |
| Caixilharia | Aluminio: | Sim |
| Caixilharia | Vidro Duplo: | Sim |
| Vistas | Cidade: | Sim |
| Vistas | Jardins: | Sim |
| Exposição Solar | Nascente: | Sim |
| Luz Natural | Muito Iluminado: | Sim |
| Ar Condicionado | Completo: | Sim |
| Infraestruturas | Esgotos: | Sim |
| Garagem | Lugar Interior: | Sim |
| Cozinha | Móveis lacado: | Sim |
| Cozinha | Cerâmica: | Sim |
| Cozinha | Placa: | Sim |
| Cozinha | Forno: | Sim |
| Cozinha | Exaustor: | Sim |
| Cozinha | Micro-ondas: | Sim |
| Cozinha | Frigorífico: | Sim |
| Cozinha | Máquina de lavar loiça: | Sim |
| Pavimento | Flutuante: | Sim |
| Gerais | Nº de Frentes : | 1 |
|---|---|---|
| Gerais | Nº de Pisos: | 1 |
| Gerais | Nº de Varandas: | 1 |
| Gerais | Nº de Lugares de Estacionamento: | 1 |
| Gerais | Permite animais: | Sim |
| Gerais | Acesso mobilidade reduzida: | Sim |
| Gerais | Estacionamento incluido: | Sim |
| Elevador | Nº de Elevadores: | 2 |
| Tipo de Empreendimento | Habitação: | Sim |
| Tipo de Empreendimento | Lojas: | Sim |
| Isolamento | Acústico: | Sim |
| Isolamento | Térmico: | Sim |
| Equipamento | Jardins: | Sim |
| Equipamento | Video-Porteiro: | Sim |
| Água | Companhia: | Sim |
| Garagem | Portão automático: | Sim |
| Garagem | Luz: | Sim |
| Garagem | Electricidade: | Sim |
| Revestimento Exterior | Capoto: | Sim |
| Gerais | Estores elétricos: | Sim |
|---|
| Gerais | Auto-Estrada: | Sim |
|---|---|---|
| Gerais | Comboio: | Sim |
| Gerais | Transportes públicos: | Sim |
| Centralidade | Centro da cidade: | Sim |
| Proximidade | Bancos: | Sim |
| Proximidade | Centros comerciais: | Sim |
| Proximidade | Clínicas: | Sim |
| Proximidade | Escolas: | Sim |
| Proximidade | Farmácias: | Sim |
| Proximidade | Ginásios: | Sim |
| Proximidade | Hospitais: | Sim |
| Proximidade | Jardins: | Sim |
| Proximidade | Jardins de infância: | Sim |
| Proximidade | Padarias: | Sim |
| Proximidade | Serviços públicos: | Sim |
| Proximidade | Supermercados: | Sim |
| Acessos | Alcatrão: | Sim |
Este imóvel não tem áreas definidas.
LITORALcasa Vera Cruz
Rua Prior Manuel António Fernandes 18 , 3800-816, Aveiro 234191000
(Chamada para a rede fixa nacional)
914670000 (Chamada para a rede fixa nacional)
Margarida Silva
Consultor
965139743
(Chamada para a rede móvel nacional)
Aveiro, Aveiro, Esgueira
605.000€
Ref: VEN-3585 3C
Ref: VEN-3585 3C
Aveiro, Aveiro, Glória e Vera Cruz
600.000€
Ref: VEN-3468 G
Ref: VEN-3468 G
Aveiro, Aveiro, Santa Joana
330.000€
Ref: VEN-4189 A
Ref: VEN-4189 A